【联仲都悦汇售楼处☎】✔✔【联仲都悦汇营销中心】✔✔【联仲都悦汇售楼处位置】✔✔

据悉,闵行旗忠别墅区【联仲·都悦汇】项目主推建面约262-305㎡别墅,仅60套房源,均价约7.35万/㎡!无需积分,直接认购!欢迎预约品鉴!

建筑延续现代法式风格,外立面全部采用干挂石材,选用更耐用、更美观的花岗岩,首次配备三玻两腔的门窗,更大程度的提升隔音、保温、隔热的效果。
【联仲都悦汇售楼处☎】✔✔【联仲都悦汇营销中心】✔✔【联仲都悦汇售楼处位置】✔✔
景观绿化结合艺术的氛围打造了“U”型游园路径,九重秘境花园串联全区,游览花园、中心绿化带绿地率均明显提升,品质感翻倍。

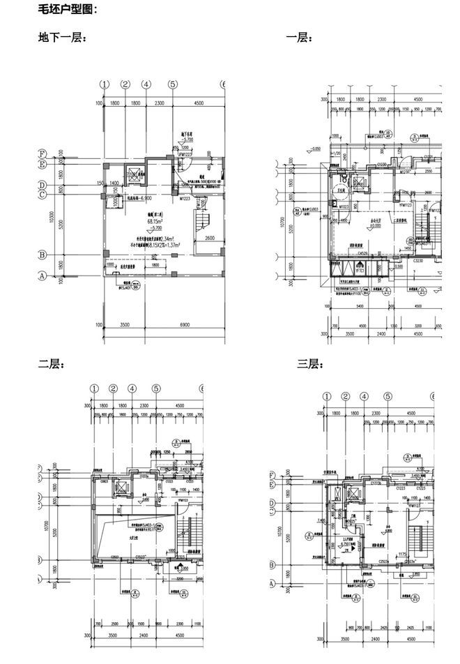
项目户型分为南北入户,均为地上三层,地下两层设计,满足业主们“有天有地有花园”的别墅居住体验!
大面积联排的精髓是亲近自然的庭前绿地,面积可观,延展出大家庭多种居住的可能性,享真正的别墅生活体验!

约6米挑高地下空间,南入户地下面积约220-270平米左右,北入户地下面积略小一些,可以根据主人喜好定制成如健身房、酒窖、影音室、台球房等任意空间。
南入户边套地下室为三面采光,中间套为双面采光,使得地下室采光更充足,空气更流通。

一层是会客区,约10.7米的超大面宽,阳光、空气可以“肆意”穿过,室内通透明亮。
【联仲都悦汇售楼处☎】✔✔【联仲都悦汇营销中心】✔✔【联仲都悦汇售楼处位置】✔✔
厨房餐厅间动线简洁流畅,超大空间还更可以按照居住需求,在1楼配置老人房,避免老人上下楼不便。


二层休息区,可以做到全朝南3房,有一个套房连接建面约8平米露台,南入户户型更是做了双套房设计。
三层是一整层的主人私享区,由书房、衣帽间、主卧组成,更有建面约13.5平米露台,保证了主人的私密空间。
【联仲都悦汇售楼处☎】✔✔【联仲都悦汇营销中心】✔✔【联仲都悦汇售楼处位置】✔✔
【联仲都悦汇售楼处☎】✔✔【联仲都悦汇营销中心】✔✔【联仲都悦汇售楼处位置】✔✔


【联仲都悦汇售楼处☎】✔✔【联仲都悦汇营销中心】✔✔【联仲都悦汇售楼处位置】✔✔


【联仲都悦汇售楼处☎】✔✔【联仲都悦汇营销中心】✔✔【联仲都悦汇售楼处位置】✔✔
【联仲都悦汇售楼处☎】✔✔【联仲都悦汇营销中心】✔✔【联仲都悦汇售楼处位置】✔✔
【联仲都悦汇售楼处☎】✔✔【联仲都悦汇营销中心】✔✔【联仲都悦汇售楼处位置】✔✔
【联仲都悦汇售楼处☎】✔✔【联仲都悦汇营销中心】✔✔【联仲都悦汇售楼处位置】✔✔
【联仲·都悦汇】位于闵行马桥旗忠别墅区,旗忠别墅区是上海老牌的富人区,与松江佘山、浦东东郊齐称为沪上三大国际别墅区。上海仅存少量的容积率0.18以下超低密度居住用地中,大多数在马桥旗忠别墅区。
旗忠别墅区是上海老牌的富人区,与松江佘山、浦东东郊齐称为沪上三大国际别墅区。上海仅存少量的容积率0.18以下超低密度居住用地中,大多数在马桥旗忠别墅区。

板块以低容积率、生态自然环境和高端国际品牌配置,2010年被列为上海第二批大型居住社区之一。总建面约33万方城市综合体联仲都悦汇位于旗忠板块正核心,紧临网球中心,超10万方市政绿化所环绕。

【联仲都悦汇售楼处☎】✔✔【联仲都悦汇营销中心】✔✔【联仲都悦汇售楼处位置】✔✔
联仲都悦汇同样是低密度别墅区里的一员,背靠绿城玫瑰园,容积率低至1.0。项目贯穿了3条自然水系,分为ABCD四个地块,其中ABC为商住办综合地块,自带商业办公。


交通配套方面:项目距离嘉闵高架元江路出口3公里,毗邻G15、S32等快速主动脉,30分钟大虹桥,50分钟抵达浦东机场,快捷畅达全城。

【联仲都悦汇售楼处☎】✔✔【联仲都悦汇营销中心】✔✔【联仲都悦汇售楼处位置】✔✔
商业配套方面:项目自带10万方商业,为旗忠唯一的综合性商业配套,其多元化的业态结构,结合旗忠独有的资源,必将带来旗忠全新生活方式。
【联仲都悦汇售楼处☎】✔✔【联仲都悦汇营销中心】400-998-8414✔✔【联仲都悦汇售楼处位置】400-998-8414✔✔
生态资源方面:项目周边有马桥森林公园、旗忠高尔夫球场、旗忠网球中心、韩湘水博园、养云安缦酒店等。

教育资源方面:周边有德威英国国际学校,斯戴文森国际高中,将提供从小学到高中毕业、全流程最领先的国际教育环境,同时还有两家知名的国际教育学府也在洽谈之中。

下面汇贷就为大家介绍一下上海一手房购房全流程,包含政策变动,认购流程,积分制细则、摇号、税费、相关申请要求等常见问题。
继LPR调整后,开始执行最新的房贷利率了。目前上海首套房贷款利率现在是3.4%。二套房利率3.8%,重点区域利率3.6%。
那我们目前还能不能在上海买房?能买几套?如何怎么判定的?下面一起随汇贷来看看上海个人及家庭房产限购政策。
沪籍与非沪籍有在限购套数上有一个很明显的区别,那就是非沪籍需要有缴纳社保参数。
ps:五大新城+宝山、金山人才购房2年社保或税单,临港人才1年社保或税单,除此都是3年社保或税单。
上海新盘必须拿到盖章生效的《商品房预售许可证》、《准售房源公告及一房一价表》才能向购房者收受含有意向性质的认购意向金费用。
ps:认购金额由开发商定,一般要求首套不低于房源最低价的20%,二套不低于30%,当然,不同开发商比例略有不同。
线下开盘还存在摇号与开盘同一天进行或分开进行的情况,但大致的流程是相似的。
公证处摇号、摇号结果公布、线上系统确认信息、测试线上选房程序、等待正式选房、按摇号顺序选房、签署线上认购书。
购房者缴纳规定认购金,并提供限购资格审查材料,收到收据、银联POS单及自己签字确认书的《认购意向书》。
·①购买人身份证、户口本、婚姻证明(结婚证、离婚证及离婚协议)、未成年子女出生证明;
·③购房人及家庭成员名下住房相关资料,购房合同或产证(只要是购房人名下的产证均需要提供,与父母共有、动拆迁、宅基地均算)
ps:认购金只能刷储蓄卡,走开发商的POS 机,不允许现金支付,支付认筹意向金后,才有参与摇号的资格,认筹早晚不影响摇号概率。
如未超过1:1.3,则不开启积分制,所有参与了认购的客户,均可公证摇号。
3.选好房,签订认购书,将认筹金转为定金,在开发商要求的时间内补首付款、签订贷款合同
ps:签订《认购书》之后,意味着意向金成了定金。如果毁约不要房子了,就要赔付违约金
①选房时还有房子,但房子位置不好或者不是你想要的,可以弃号不选,全额退款;
③选到了自己想买的房子,签订认购书,将认购金转为定金,在开发商要求的时间内补足首付款、签订贷款合同。
二套及以上:人均60平建筑面积免征房产税,超出面积视为“应税面积”应缴纳房产税。
持有上海居住证但不满3年或居住证积分不满120分的购房人,其上述住房先按本暂行办法规定征收房产税。
待持有上海居住证满3年或积分满120分并在本市工作生活的,其上述住房已征收的房产税,可予退还。
在上海的“居留许可”连续满三年或税单满3年并在有效期内的,可以在报税当天直接申请免征。
在上海的“居留签注”连续满3年并在有效期内的,或持有连续满3年的税单和社保都可以直接申请免征。
3、结婚证或离婚证明(若离婚协议涉及房产需明确分割,否则需提供补充协议)
5、朋友有一套12年买的房,房子本身还有贷款,如果把贷款还清,过给我的话,他们买房算无房还是有房?
ps:如果是买房,进行了网签,有购房记录,算有房。但如果是卖房,给别人网签后需要过完户才能算自己无房。
7、夫妻名下均无房,婚后共有一套房,目前离星空体育首页婚,我净身出户,离婚超过五年,想买套房,算首套还是二套?
注意,一手房在认购环节,认购金银行卡务必提前开通大额支付功能,避免因限额而影响认购。




